Miete inkl. USt.€ 848,80
Über die Wohnung
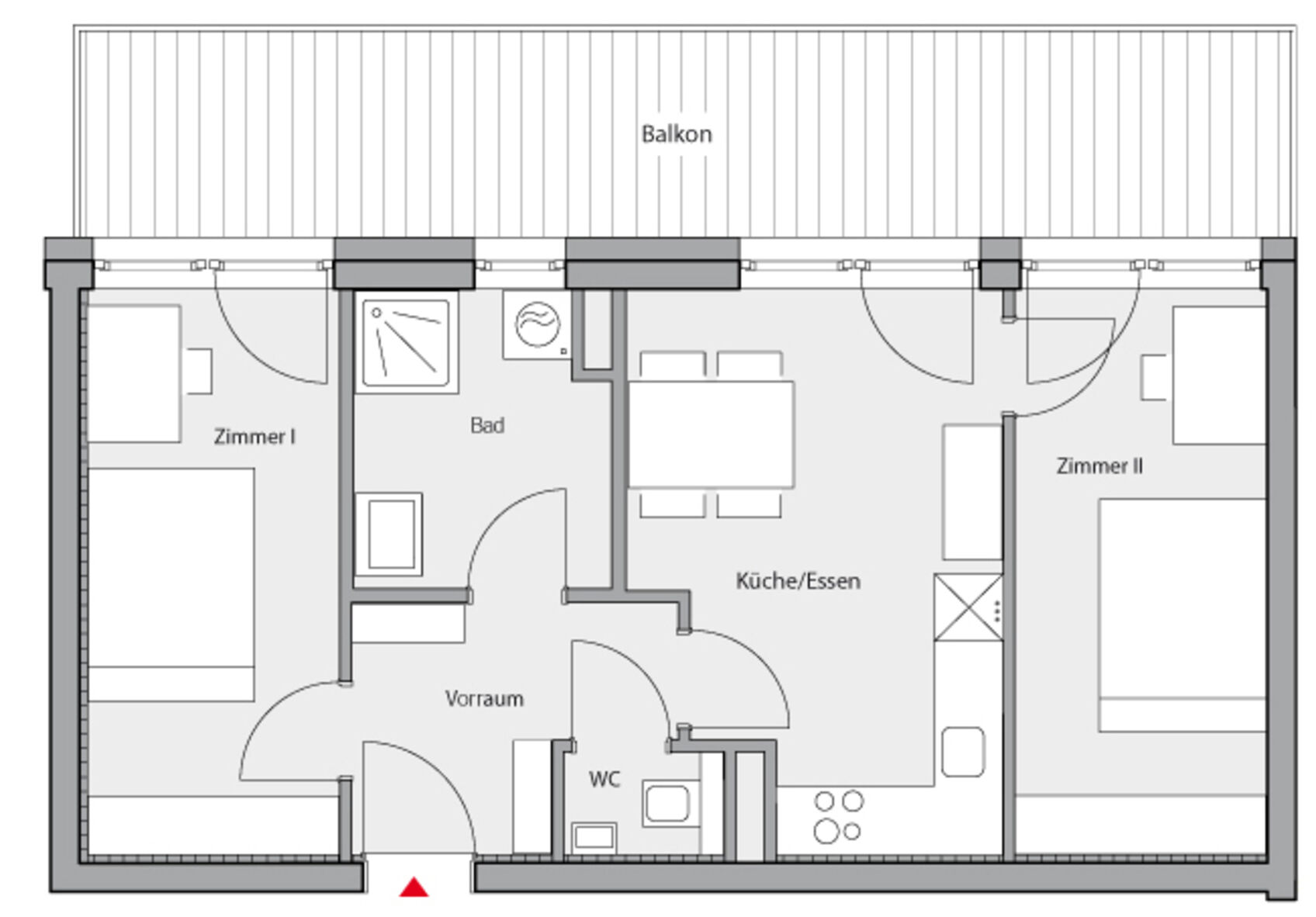
Schöne 2 Zimmer-Wohnung mit Dachterrasse in der Heinrichstraße neben dem bekannten „Lorenzhof“ zu vermieten.Mitten im Grünen und in unmittelbarer Nähe zur Universität befindet sich die im Jahr 2016 errichtete Wohnanlage.Schöne 2 Zimmer-Wohnung mit Dachterrasse in der Heinrichstraße neben dem bekannten „Lorenzhof“ zu vermieten.Mitten im Grünen und in unmittelbarer Nähe zur Universität befindet sich die im Jahr 2016 errichtete Wohnanlage.
Die Wohnungen sind barrierefrei und mit Lift erreichbar.
Die Wohnung im 2. OG teilt sich ein in:
- einen Vorraum
- eine gemütliche Wohnküche (die Küche ist möbliert)
- zwei Schlafzimmer
- Balkon mit ca. 19m²
- Bad
- WC
Weiters ist der Wohnung ein Kellerabteil zugeteilt.
Ein Kindergarten befindet sich direkt im Haus. Ein Supermarkt und ein Bäcker sind fußläufig erreichbar. Die öffentliche Anbindung ist durch die Buslinien 58 und 81 sowie die Straßenbahnlinie 1 gegeben.
Die Ausflugsziele Leechwald und Hilmteich sowie das Naherholungsgebiet Rosenhein befinden sich in der unmittelbaren Umgebung.
Haben wir Ihr Interesse geweckt? Dann vereinbaren Sie einen persönlichen Besichtigungstermin vor Ort.
Ausstattung
- Bad
- WC
- Balkon
- Kellerabteil
- Vorraum
- Wohnküche
- 2 Zimmer
Galerie
Lage
Interesse?
Nehmen Sie gerne mit uns Kontakt auf!
Grundriss
Wohnungen

