Diese Wohnung unterliegt den Bestimmungen des WGG (Wohnungsgemeinnützigkeitsgesetzes) und kann nur zur Deckung des eigenen Wohnbedarfs erworben werden. Der Kaufpreis versteht sich als Fixpreis.
Kaufpreis€ 175.613,00
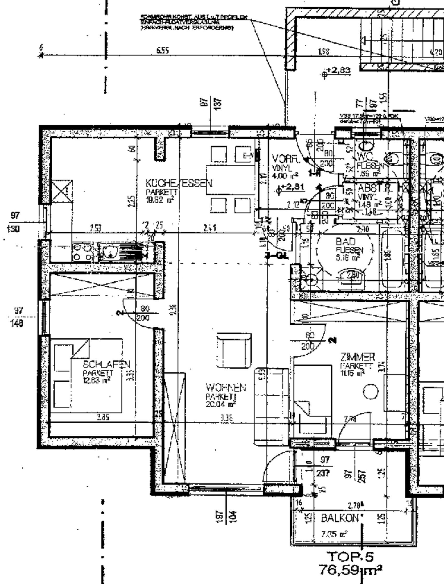
Über die Wohnung
Die 4-Zimmer-Wohnung im Obergeschoss teilt sich ein in:
- 1 Vorraum
- 1 Esszimmer/Küche
- 3 Zimmer
- 1 Abstellraum
- 1 Bad
- 1 WC
- 1 Balkonanteil
- 1 Kellerabteil Nr. 5
Ratsch an der Weinstraße liegt idyllisch inmitten der sanften Hügel der Südsteiermark, umgeben von malerischen Weinbergen und traditionellen Buschenschänken. Der charmante Weinort nahe Ehrenhausen bietet eine ruhige Lage mit herrlicher Aussicht und zugleich eine gute Anbindung an Leibnitz und den Grenzübergang Spielfeld.
Ideal für alle, die naturnah wohnen und das südsteirische Lebensgefühl genießen möchten!
Anmerkung:
Die Bezahlung der Grundkosten ist für den Abschluss des Mietvertrages zwingend erforderlich.
Informationen zum Wohnungskauf
Ausstattung
- 1 überdachter PKW-Abstellplatz
- Abstellraum
- Bad
- WC
- Balkon
- Kellerabteil
- Vorraum
- Wohnküche
- 3 Zimmer
Galerie
Lage
Interesse?
Nehmen Sie gerne mit uns Kontakt auf!
Grundriss
Wohnungen

