Miete inkl. USt.€ 871,73
Über die Wohnung
Infobox
Rechtsform
Mietwohnung
Bezug möglich ab
1. Januar 2026
Zimmer
2
Lage
Maisonette-Wohnung
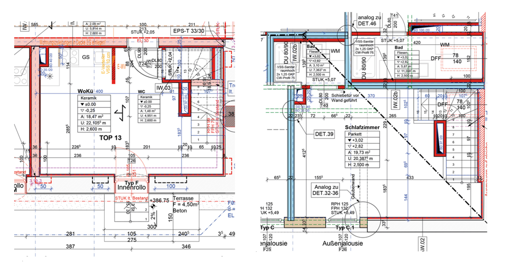
Wohnfläche (exkl. Loggia)
42,71 m²
Fläche Terrasse
4,50 m²
Fläche Garten
65,85 m²
Kellerersatzraum
2,21 m²
Preisinformation
Kaution (einmalig)
€ 2.615,19
Monatliche Miete inkl. BK und HK brutto
€ 871,73
Die gegenständliche Wohnung befindet sich im EG/1. OG und teilt sich ein in:
- 1 Zimmer
- Wohnküche (Küche möbliert)
- Bad
- WC
- Garten
- Terrasse
Ausstattung
- Bad
- WC
- Einbauküche
- Garten
- Kellerabteil
- Terrasse
- Wohnküche (Küche möbliert)
- 1 Zimmer
Galerie
Lage
Energieausweis
HWB Energieklasse
C
Gesamtenergieeffizienzfaktor
1,073
HWB
60 kWh/m²a
Interesse?
Nehmen Sie gerne mit uns Kontakt auf!
Projektinformationen
Infobox
Wohnflächen
43 m²
Projektstatus
Kurzfristig beziehbar
Grundriss
Wohnungen
Wohnung
Fläche
Lage
Preis

